![]()
西口エリアの大型ハイグレードオフィスビル
ご内見等お気軽にお問い合わせください!
写真をクリックすると拡大表示できます
周辺エリア情報
■コンビニ:セブンイレブン、ローソン
■銀行:三菱UFJ、静岡、りそな他
■郵便局:横浜駅西口、横浜鶴屋町
西口駅前ビジネス街に立地し、各施設への至便性は最高。近隣ビルに比べ、新しくスマートな近代的なビルです。
| 物件No: | YK143f |
|---|---|
| 種別: | 事務所・オフィス |
| 物件名: | 横浜STビル |
| 最寄駅: | 横浜駅西口 |
| 所要時間: | 徒歩5分 |
| 賃料: (別途消費税) |
貸主様のご意向により賃料を非公開としている物件です。確認されたい場合は、弊社までお気軽にお問合せ下さい |
| 敷金(保証金): | 未定 |
| 管理費等: (別途消費税) |
賃料に含む |
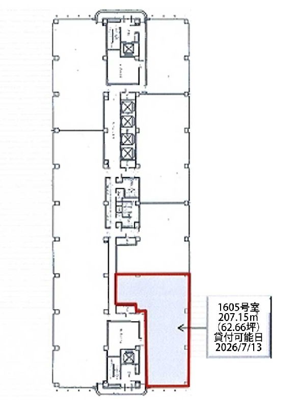
| 面積: | 62.66坪(207.15㎡) |
| 募集階: | 15F1504号室、16F1605号室 |
| 住所: | 横浜市西区北幸1丁目 |
| 新築年月: | 1987年(昭和62年)10月 |
| チェックポイント: |
機械警備あり 男女別トイレ 更新料なし 個別空調 |
| 備考: | 入居時期:15F-2026年7月1日予定、16F-7月13日予定 構造:SRC造 地下2階地上18階建塔屋2階 更新料、償却:なし 駐車場有:詳細お問合せ下さい ◎エレベーター8基(24人乗)+非常用2基 ◎天井高:2500mm ◎24時間使用可 ◎セキュリティ(24時間常駐警備) 1F正面 7:00〜22:00(月〜日) B1正面 7:00〜23:00(月〜土) 9:00〜22:00(日・祝) |
| ひと言PR: | 【アクセス至便!】 「横浜駅」から徒歩5分♪ 横浜駅直結地下街出口(南10番)からは徒歩1分の大型ビル!無柱の使いやすい室内です! ご業種から諸条件まで お気軽にご相談・お問合せください! |
| 取引形態: | 媒介 |




