![]()
| 物件No: | YK028b |
|---|---|
| 種別: | 事務所・オフィス |
| 最寄駅: | 横浜駅東口 |
| 所要時間: | 徒歩3分 |
| 賃料: (別途消費税) |
貸主様のご意向により賃料を非公開としている物件です。確認されたい場合は、弊社までお気軽にお問合せ下さい |
| 敷金(保証金): | 12ヵ月 |
| 管理費等: (別途消費税) |
14万4960円 |
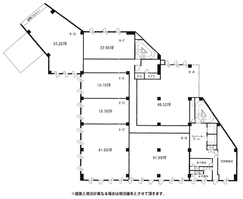
| 面積: | 48.32坪(159.74㎡) |
| 募集階: | 5F-A区画 |
| 住所: | 横浜市西区高島2丁目 |
| 新築年月: | 1986年(昭和61年)6月 |
| チェックポイント: |
男女別トイレ 更新料なし |
| 備考: | 入居時期:即日 構造:SRC造 地下2階、地上8階、塔屋1階建 礼金、更新料、敷金償却:なし 駐車場あり:詳細お問合せ下さい ※電気、空調、清掃等の費用別途あり ※要火災保険加入 ◎エレベーター 2基 ◎24時間使用可 |
| ひと言PR: | 【駅徒歩3分・東口ビジネスエリアの好立地】 ◇施設内貸会議室あり ◇フリーレントもご相談下さい! ご業種から諸条件まで お気軽にご相談・お問合せください! |
| 取引形態: | 媒介 |





