![]()
センター北駅すぐ☆『YOTSUBAKO』
スケルトン渡し
ご内見等お気軽にお問い合わせください!
写真をクリックすると拡大表示できます
周辺エリア情報
■コンビニ:セブンイレブン
■銀行:三井住友、横浜
■郵便局:横浜センター北駅前局
| 物件No: | TA164m (仲介実績あり) |
|---|---|
| 種別: | 店舗系 |
| 最寄駅: | センター北 |
| 所要時間: | 徒歩1分 |
| 賃料: (別途消費税) |
貸主様のご意向により賃料を非公開としている物件です。確認されたい場合は、弊社までお気軽にお問合せ下さい |
| 敷金(保証金): | ご相談 |
| 管理費等: (別途消費税) |
賃料に含む |
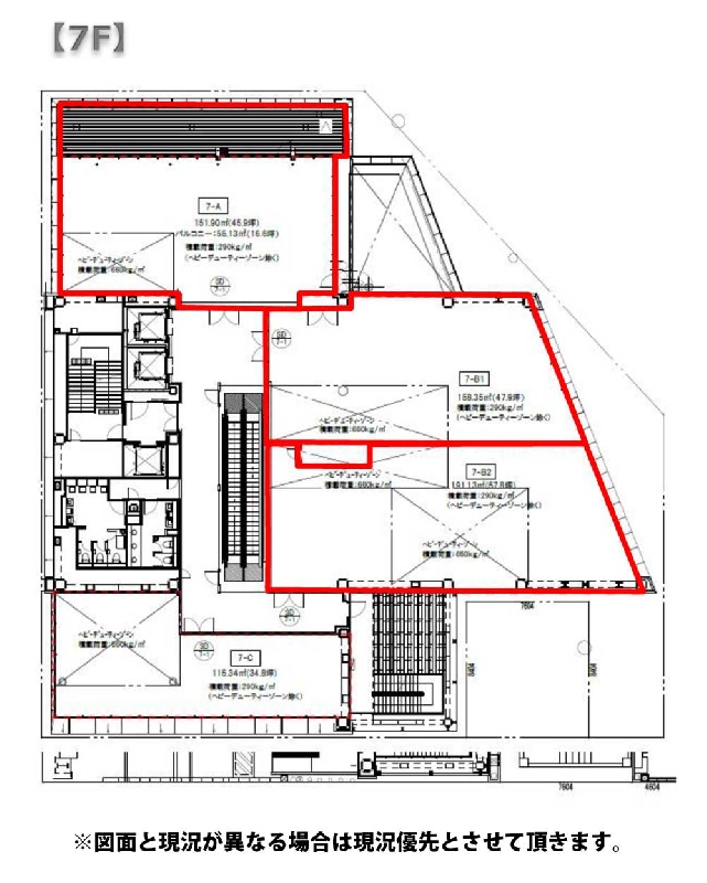
| 面積: | 45.94坪(151.87㎡) |
| 募集階: | 7F-A |
| 住所: | 横浜市都筑区中川中央1丁目 |
| 新築年月: | 2011年(平成23年)10月 |
| チェックポイント: | |
| 備考: | 入居時期:即日(スケルトン渡し) 構造:鉄骨造一部鉄骨鉄筋コンクリート造及び鉄筋コンクリート造 地上8階 地下1階 定期借家契約:5年以上/ご相談 礼金、保証金償却:なし 販売促進金、駐車場負担金、開店時販促負担金:別途有 天井高:2900mm(スラブ高3390mm〜3765mm※ただし現況有姿) 営業時間11:00〜23:00(応相談) ※要保証会社加入 ※要火災保険加入 ◎エレベーター3基 ◎エスカレーター(1F〜8F) ◎光ケーブル引込済(MDFまで) ◎ガス:店舗区画内配管コック止め ◎水道:給水管32A、排水管100A ◎倉庫:月額5000円(税抜) |
| ひと言PR: | 【センター北駅すぐ!】 ◇市営地下鉄線「センター北」駅徒歩1分 ご業種から諸条件まで お気軽にお問い合わせください! |
| 取引形態: | 媒介 |






