![]()
駅徒歩5分のグレード感ある建物。ご内見等お気軽にお問合せ下さい!
駅徒歩5分のグレード感ある建物。
2021年エントランス、EVホールリニューアル工事済
写真をクリックすると拡大表示できます
周辺エリア情報
■コンビニ:セブンイレブン(ビル1F)、ファミリーマート、ローソン
■銀行:横浜信金、城南信金、みずほ
■郵便局:新横浜駅前局
ラーメン博物館や飲食店も多く賑やかな立地です!
| 物件No: | SY056f |
|---|---|
| 種別: | 事務所・オフィス |
| 最寄駅: | 新横浜 |
| 所要時間: | 徒歩5分 |
| 賃料: (別途消費税) |
貸主様のご意向により賃料を非公開としている物件です。確認されたい場合は、弊社までお気軽にお問合せ下さい |
| 敷金(保証金): | 12ヵ月 |
| 管理費等: (別途消費税) |
賃料に含む |
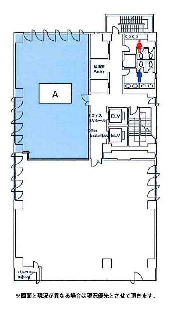
| 面積: | 39.53坪(130.68㎡) |
| 募集階: | 8F |
| 住所: | 横浜市港北区新横浜2丁目 |
| 新築年月: | 1991年(平成3年)8月 |
| チェックポイント: |
機械警備あり 男女別トイレ 更新料なし 個別空調 OAフロア |
| 備考: | 入居時期:即日 構造:鉄骨鉄筋コンクリート造 地下1階、地上8階建 契約期間:2年 天井高:2660mm 床仕様:OAフロア(40mm) 機械式駐車場27台:現在空なし エントランス開放:平日 7:00~20:00、 土曜 7:00~17:00、日祝祭日:終日閉鎖 ※要火災保険加入 ※要保証会社加入 ◎エレベーター2基 |
| ひと言PR: | ※2021年エントランス・エレベーターホールリニューアル工事済み ※2階共用部(給湯室・トイレ)リニューアル実施予定 ご業種から諸条件まで お気軽にご相談・お問合せください! |
| 取引形態: | 媒介 |





