![]()
新横浜駅目の前の好立地、至便性抜群な所がオススメです!
1Fの横浜銀行が目印の駅前ビルです。ご内見等お気軽にお問い合わせください!
※室内参考写真※
※室内参考写真※ご内見等お気軽にお問い合わせください!
写真をクリックすると拡大表示できます
周辺エリア情報
■コンビニ:デイリーヤマザキ
■銀行:横浜、三井住友、城南信金
■郵便局:新横浜駅前
■飲食店多数あり
| 物件No: | SY051 |
|---|---|
| 種別: | 事務所・オフィス |
| 最寄駅: | 新横浜 |
| 所要時間: | 徒歩1分 |
| 賃料: (別途消費税) |
貸主様のご意向により賃料を非公開としている物件です。確認されたい場合は、弊社までお気軽にお問合せ下さい |
| 敷金(保証金): | ご相談 |
| 管理費等: (別途消費税) |
賃料に含む |
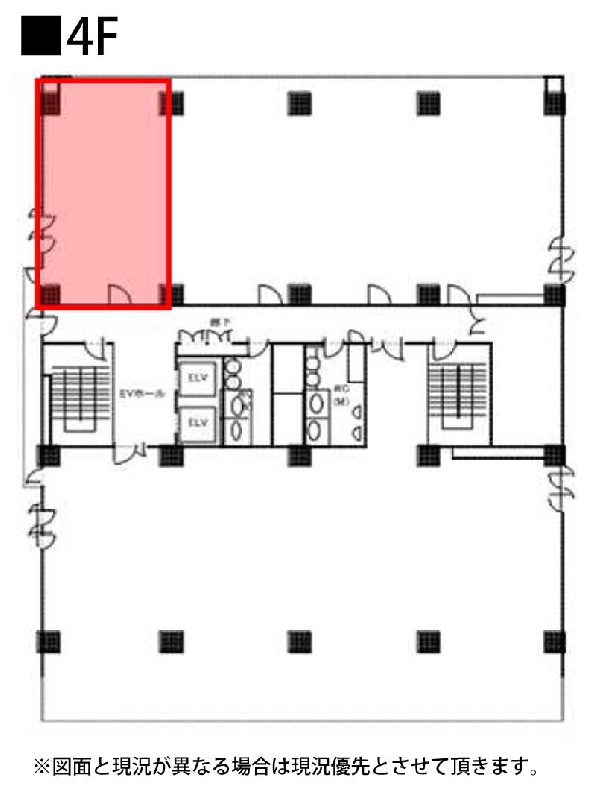
| 面積: | 19.24坪(63.61㎡) |
| 募集階: | 4F、6F 各フロア |
| 住所: | 横浜市港北区新横浜3丁目 |
| 新築年月: | 1986年(昭和61年)3月 |
| チェックポイント: |
機械警備あり 男女別トイレ 更新料なし 個別空調 OAフロア |
| 備考: | 入居時期:4F-2026年4月1日予定、6F-5月6日予定 構造:SRC造 地下1階、地上9階、塔屋1階建 天井高:2500mm OA床:40mm(一部、Pタイル・タイルカーペット) 駐車場あり(24時間入出庫可)現在空車2台 開館時間 平日7:30〜20:00、土曜8:30〜17:30 ※看板掲出料あり ※指定清掃業者あり(別途契約) ※時間外空調料金あり ◎エレベーター ◎光ケーブル(各階EPSまで設置済み) |
| ひと言PR: | 【新横浜駅前広場に面する好立地】 ◇2011年3月共用部リニューアル済 ◇2015年空調全面リニューアル済 (個別補助空調化) ご業種から諸条件まで お気軽にご相談・お問合せください! |
| 取引形態: | 媒介 |






