![]()
駅から徒歩5分!前面がハーフミラーのキレイな外観
石張りの重厚感のあるエントランス
ご内見等お気軽にお問い合わせください!
写真をクリックすると拡大表示できます
周辺エリア情報
■コンビニ:ナチュラルローソン
■銀行:城南信用金庫、三井住友
■郵便局:新横浜駅前
■周辺にはドラッグストアや飲食店も多数ございます。
| 物件No: | SY036d |
|---|---|
| 種別: | 事務所・オフィス |
| 最寄駅: | 新横浜 |
| 所要時間: | 徒歩5分 |
| 賃料: (別途消費税) |
貸主様のご意向により賃料を非公開としている物件です。確認されたい場合は、弊社までお気軽にお問合せ下さい |
| 敷金(保証金): | ご相談 |
| 管理費等: (別途消費税) |
42万7035円 |
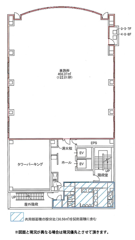
| 面積: | 122.01坪(403.34㎡) |
| 募集階: | 8F ワンフロア |
| 住所: | 横浜市港北区新横浜2丁目 |
| 新築年月: | 1992年(平成4年)3月 |
| チェックポイント: |
機械警備あり 男女別トイレ 更新料なし 個別空調 |
| 備考: | 入居時期:即日 構造:鉄骨(一部鉄骨鉄筋コンクリート)造 地下1階、地上11階建 更新料、償却:なし 契約期間:2年 機械式駐車場あり:詳細お問合せ下さい 天井高:2500mm ※要保証会社加入 ※要火災保険加入 ◎エレベーター 2基(11人乗り) ◎給湯、1Fに自動販売機 |
| ひと言PR: | 【複数路線利用可能駅から近い好立地!】 ◇日産スタジアムが一望 ◇ハーフミラーの外観が印象的です ご業種から諸条件まで お気軽にご相談・お問合せください! |
| 取引形態: | 媒介 |





