![]()
人気のみなとみらいエリア!
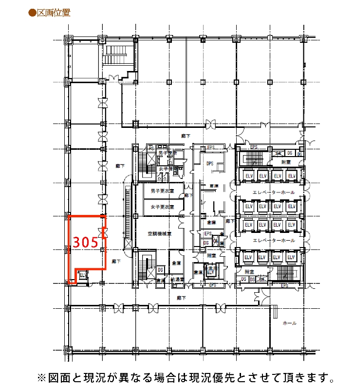
3F店舗フロア・クリニック、スクール等を想定
ご内見等お気軽にお問い合わせください!
ビル2階には飲食店街があります!
写真をクリックすると拡大表示できます
周辺エリア情報
■コンビニ:セブンイレブン、ファミリーマート、ローソン
■銀行:三菱UFJ(ATM)、横浜、みずほ(ATM)
■郵便局:ランドマークタワー内
■カフェ:ドトール、プロント、スターバックス
ご業種から諸条件まで
お気軽にお問い合わせください!
| 物件No: | MM005e (仲介実績あり) |
|---|---|
| 種別: | 店舗・事務所 |
| 最寄駅: | みなとみらい |
| 所要時間: | 徒歩7分 |
| 賃料: (別途消費税) |
貸主様のご意向により賃料を非公開としている物件です。確認されたい場合は、弊社までお気軽にお問合せ下さい |
| 敷金(保証金): | 12ヵ月 |
| 管理費等: (別途消費税) |
賃料に含む |
| 面積: | 22.06坪(72.93㎡) |
| 募集階: | 3F |
| 住所: | 横浜市西区みなとみらい3丁目 |
| 新築年月: | 1994年(平成6年)2月 |
| チェックポイント: |
機械警備あり 男女別トイレ 更新料なし 個別空調 OAフロア |
| 備考: | 入居時期:即日 構造:地上 鉄骨造 地下 鉄骨鉄筋コンクリート造 地上33F、地下2F (1F〜3F店舗、4F〜33F事務所) 定期借家契約:5年応相談 礼金、償却、更新料:なし ◎エレベーター ◎土日営業可 ◎光ケーブル引き込み可 ※要火災保険加入 ※要保証会社加入 |
| ひと言PR: | 【3F想定テナント】 ・学習塾、スクール系、整体、マッサージ、クリニック、スタジオ、ゴルフスクール等 ◇MM線「みなとみらい」駅徒歩4分 ◇JR京浜東北・根岸線「桜木町」駅徒歩8分 |
| 取引形態: | 媒介 |






