![]()
品の良い外観・関内駅から徒歩4分!
みなとみらい線「馬車道」駅も利用可です
明るいエレベーターホール
写真をクリックすると拡大表示できます
周辺エリア情報
■コンビニ:ローソン ファミリーマート
■銀行:神奈川信用金庫 群馬銀行 りそな
■郵便局:神奈川中小企業センター内局
JR桜木町・関内、市営地下鉄関内、みなとみらい線馬車道駅の4駅利用可能な至便物件です。
近くに教会や博物館もあり、横浜ながらの趣きがあるオフィス街です。
| 物件No: | BK012h (仲介実績あり) |
|---|---|
| 種別: | 事務所・オフィス |
| 最寄駅: | 関内駅(海側・横浜スタジアム側) |
| 所要時間: | 徒歩4分 |
| 賃料: (別途消費税) |
貸主様のご意向により賃料を非公開としている物件です。確認されたい場合は、弊社までお気軽にお問合せ下さい |
| 敷金(保証金): | 12ヵ月 |
| 管理費等: (別途消費税) |
賃料に含む |
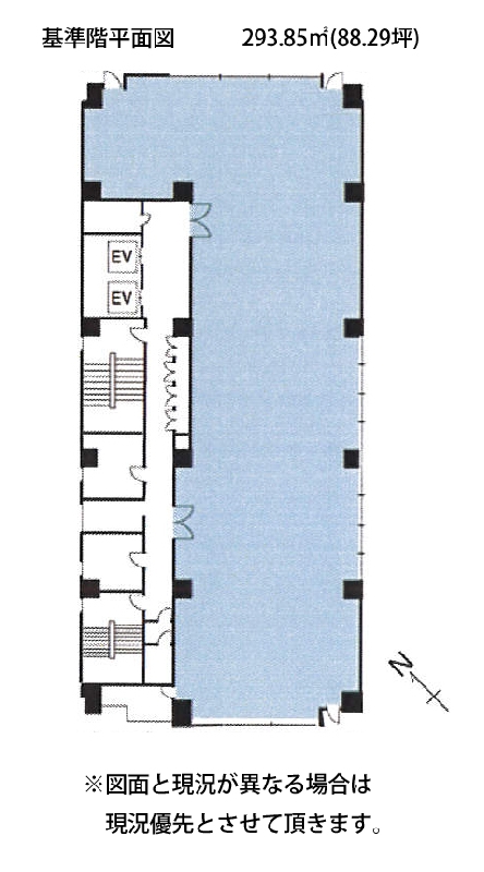
| 面積: | 30.01坪(99.21㎡) |
| 募集階: | 4F-B |
| 住所: | 横浜市中区尾上町6丁目 |
| 新築年月: | 1990年(平成2年)2月 |
| チェックポイント: |
機械警備あり 男女別トイレ 更新料なし 個別空調 |
| 備考: | 入居時期:2026年3月2日予定 構造:SRC造 地下1階、地上9階建 更新料、償却:なし 駐車場:空あり ※要火災保険加入 ※要保証会社加入 ◎エレベーター2基 ◎天井高2600mm ◎光ファイバー敷設済み |
| ひと言PR: | 【尾上町通り沿い☆アクセス至便】 ◇各線「関内」駅徒歩4分 ◇MM線「馬車道」駅徒歩7分 ご業種から諸条件まで お気軽にお問い合わせください! |
| 取引形態: | 媒介 |





